Печь Contura 610:5 Style

325bb1337332
Доставка
Варианты оплаты
Уже 15 лет для Вас

Очаг — Магазин каминов №1

Лучшие цены

Бесплатный профессиональный замер

Прозрачные сметы

Ясные сроки

Комфорт оплаты

Понимаем любой бюджет

Удобное вам время

Приоритет — безопасность

Примеры работ     #Степан_Знает

Описание
Характеристики

Общие

Производитель:
Страна-производитель:
Швеция
Цвет:
Чёрный
Гарантия:
5 лет
Материал дверцы:
Сталь
Материал отделки:
Материал топки:

Производительность

Использование для отопления:
КПД:
86%
Мощность:
9 кВт
Объем отопления:
225 м³
Площадь отопления:
90 м²

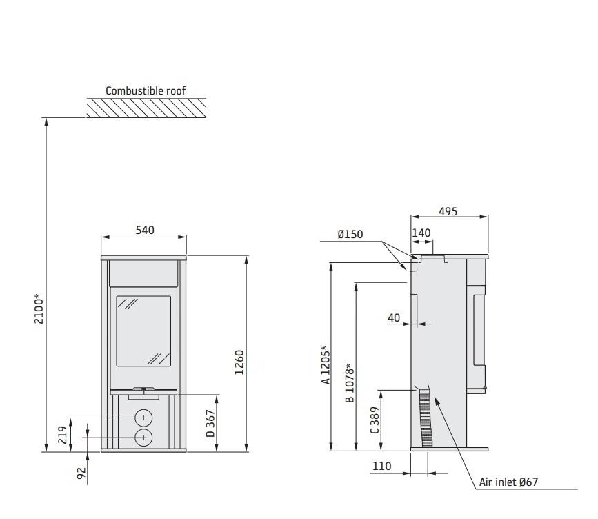
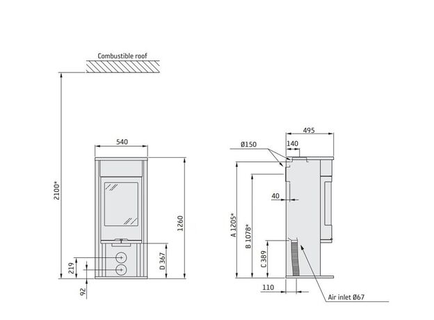
Размеры

Диаметр дымохода:
150 мм
Общая высота:
1260 мм
Общая глубина:
495 мм
Общая ширина:
540 мм
Общий вес:
130 кг

Особенности

Водяной контур:
Нет
Вывод трубы:
Дожиг газов:
Духовка:
Плита для готовки:
Подача воздуха на стекло:
Да
Подвод внешнего воздуха:
За те же деньги