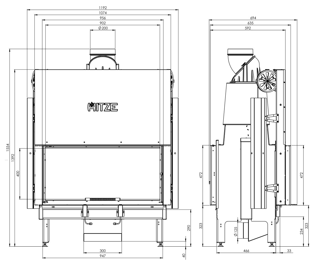
Топка Hitze ARD90x41.DGS

18dfab7f9ecc
ПроизводительHitze Страна-производительПольша Мощность18 кВт
Доставка
Варианты оплаты
Уже 15 лет для Вас

Очаг — Магазин каминов №1

Лучшие цены

Бесплатный профессиональный замер

Прозрачные сметы

Ясные сроки

Комфорт оплаты

Понимаем любой бюджет

Удобное вам время

Приоритет — безопасность

Примеры работ     #Степан_Знает

Характеристики

Общие

Производитель:
Страна-производитель:
Польша
Боковое стекло:
Сзади
Гарантия:
5 лет
Конструкция топки:
Материал корпуса:
Материал топки:
Мощность топки:
18 кВт
Стекло с подъемом вверх:
Да

Производительность

Использование для отопления:
КПД:
79%
Мощность:
18 кВт
Объем отопления:
450 м³
Площадь отопления:
180 м²

Размеры

Диаметр дымохода:
200 мм
Общая высота:
1554 мм
Общая глубина:
635 мм
Общая ширина:
1192 мм
Ширина рамки:
956 мм
Общий вес:
350 кг

Особенности

Водяной контур:
Дожиг газов:
Зольный ящик:
Да
Подача воздуха на стекло:
Да
Подвод внешнего воздуха:
Подъем стекла вверх:
Шибер:
Нет